礦山起重機廠家、天車、桁吊、電動葫蘆雙梁橋式起重機產品簡介:
LH型電動葫蘆橋式起重機的起升機構是坐式電動葫蘆,具有外型尺寸緊湊、建筑凈空高度低、自重輕、輪壓小等優點。適用于機械加工車間、冶金廠輔助車間、倉庫、料場、電站等的轉運、裝配、檢修和裝卸作業;它也可以代替普通雙梁橋式起重機,用于輕紡工業和食品工業的生產車間。其工作類型為輕級和中級,工作環境溫度為-25℃~40℃,禁止在易燃、腐蝕性介質環境中使用。
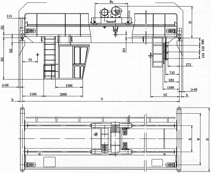
而QD型吊鉤橋式起重機的起升機構是起重小車,起重小車的組成是卷筒、減速機、電機、制動器及電器,它更耐用,二者區別還是很大的。
本產品設有地面和操縱室操作兩種形式。操作室有開式、閉式兩種。可根據實際情況分為左或右面安裝兩種形式。入門方向有側面、端面、頂部三種。以滿足用戶在不同的情況下進行選擇。礦山起重機械現在用無線遙控器操作比較多。






